Používame cookies

Súbory cookie a ďalšie technológie sledovania používame na zlepšenie vášho zážitku z prehliadania našich webových stránok, na to, aby sme vám zobrazovali prispôsobený obsah a cielené reklamy, na analýzu návštevnosti našich webových stránok a na pochopenie toho, odkiaľ naši návštevníci prichádzajú. Viac info

 

Na prenájom podlažná budova pri centre v mesta Šurany

Interné ID: 160
Ulica: pri centre
Obec: Šurany
Okres: Nové Zámky
Kraj: Nitriansky kraj
Druh: Objekty
Typ: Prenájom
Typ objektu: Polyfunkčná budova
6 €/m2/mesiac

Popis nehnuteľnosti

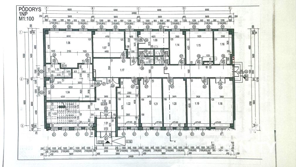
Ponúkame iba u nás - Na prenájom poschodovú budovu, ktorá sa nachádza pri centre v meste Šurany. Budavu je vhodné využiť ako ubytovňu, kancelárie, či iné zameranie.

BUDOVA
- úžitková plocha budovy je okolo 300m2 (prízemie 300, poschodie 300)
- budova je v pôvodnom stave, vymenené plastové okná
- vykurovanie bolo plynovým kotlom, momentálne je odstavené
- budova je pripojená k elektrike, vode, plynu

REKONŠTRUKCIA
Po dohode s majiteľom je možnosť dvoch foriem.
1. Varianta: nájomca si prerobí priestor za svoje náklady s tým, že sa to zohľadní v nájomnom.
2. Varianta: majiteľ zabezpečí prerobenie interiéru na svoje náklady s tým že sa zloži väčšia záloha.

VÝHODY
- nie je potrebná roziahla investícia
- pri centre

CENA: 6€/m2 + energie podľa spotreby

Vlastnosti

Status:
aktívne
Vlastníctvo:
osobné
Úžitková plocha:
600 m2
Zastavaná plocha:
300 m2
Podlahová plocha:
600 m2
Skladová plocha:
600 m2
Stav:
pôvodný stav
Počet izieb:
18
Energetický certifikát:
žiadne
Typ budovy:
tehla
Typ výbavy:
nevybavený
Verejné vonkajšie parkovanie:
áno
Celková plocha:
300 m2
Inžinierske siete:
áno
Voda:
áno
Elektrika:
áno
Plyn:
áno
Kanalizácia:
áno

Pozrieť na mape

Maklér

Reality pre mňa nie sú len o predaji či prenájme nehnuteľností. Sú o ľuďoch, príbehoch a nových začiatkoch. Ako majiteľ realitnej kancelárie a aktívny realitný maklér pracujem s modernými technológiami – od Matterport 3D virtuálnych prehliadok, cez dronové zábery až po profesionálne video-obhliadky – aby každá nehnuteľnosť dostala pozornosť, ktorú si zaslúži. Ku každému klientovi pristupujem individuálne, s dôrazom na dôveru, transparentnosť a osobný prístup. Ja nepredávam nehnuteľnosti – ja pomáham vytvárať domov.

Radi Vám poradíme

Podobné nehnuteľnosti